Friedberg (Hessen):
So wird dein 110 m² Bungalow zum echten Traumhaus
Objekt-Nr.: 30627-9140

Solution 110 V3

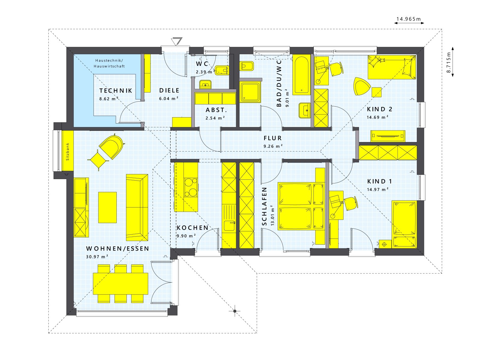
EG

Wohnbeispiel

Wohnbeispiel

Wohnbeispiel

Zertifikat

CrefoZert

Auszeichnung

TOP Musterhaus

Logo










Preis:
755.881 €
Wohnfläche ca.:
110 m²
Grundstück ca.:
700 m²
Zimmeranzahl:
3
Willkommen in deinem neuen, individuell gestalteten Bungalow von LivingHaus, das mit seinem an den Bauhausstil erinnernden Design und einem modernen Flachdach überzeugt. Auf einer Wohnfläche von 110 m² bietet dieses Haus mit drei Zimmern und zwei Schlafzimmern alles, was du dir für dein neues Zuhause wünschst. Der großzügige Übereck-Panoramaerker eröffnet ein beeindruckendes Raumgefühl im Wohn- und Essbereich und lässt viel natürliches Licht herein. Besonders durchdacht ist die Außenarchitektur: Die nahtlose Verbindung zwischen der überdachten Eingangspartie und dem Carport sorgt dafür, dass du bei jedem Wetter trocken ins Haus gelangst.…
Ein besonderes Highlight bei LivingHaus ist die Vielzahl an zusätzlichen Leistungen, die dir den Weg zum Eigenheim erleichtern. Beginne mit der individuell für dich geplanten Traumküche, die mit modernster Technik und cleveren Stauraumlösungen ausgestattet ist. Ergänzt wird dies durch das Living Haus Bau-Cockpit, eine innovative App, die dir jederzeit Kontrolle über dein Projekt ermöglicht.
I-KON Intelligentes Bauen steht für Nachhaltigkeit gepaart mit moderner Technologie. Dein Haus wird als I-KON Effizienzhaus 55 gebaut, was bedeutet, dass es nur 55 % der Energie eines Standardhauses benötigt – dank hervorragender Dämmung und intelligenter Heiztechnik.
Mit dem Zuhause-Darlehen profitierst du von exklusiven Konditionen zur Finanzierung deines Hauses und kannst auf staatliche Förderprogramme zugreifen. Das Zuhause-Paket bietet dir eine hochwertige Grundausstattung inklusive edler Böden und stilvoller Sanitäranlagen.
Wenn du selbst Hand anlegen möchtest, unterstützt dich das DIY-Ausbau-Coaching dabei, deinen Innenausbau eigenständig zu meistern – eine Erfahrung, die dich zum Profi in deinem eigenen Zuhause macht.
Haustyp: Bungalow
Etagenanzahl: 1
Küche: Einbauküche, offen
Bad: Dusche, Wanne, Fenster
Anzahl Schlafzimmer: 2
Baujahr: 2025
Bauphase: Haus in Planung (projektiert)
Verfügbar ab: 2025
Zustand: Haus in Planung (projektiert)
Heizung: Zentralheizung
Befeuerungsart: Wärmepumpe
Energietyp: KFW55
Energieausweistyp: Bedarfsausweis
Energieeffizienz-Klasse: A+
Baujahr laut Energieausweis: 2025
Bei Abschluss eines Kaufvertrages wird eine Vermittlungs-/ Nachweisprovision in Höhe von 3,57 % inklusive 19 % Mehrwertsteuer auf den Kaufpreis vom Käufer fällig.
Die von uns gemachten Informationen beruhen auf Angaben des Verkäufers bzw. der Verkäuferin. Für die Richtigkeit und Vollständigkeit der Angaben kann keine Gewähr bzw. Haftung übernommen werden. Ein Zwischenverkauf und Irrtümer sind vorbehalten.
Wir weisen auf unsere Allgemeinen Geschäftsbedingungen hin. Durch weitere Inanspruchnahme unserer Leistungen erklären Sie die Kenntnis und Ihr Einverständnis.
Das könnte Ihnen auch gefallen

Derya Gülderen - Freie Handelsvertretung der Living Fertighaus GmbH - Handelsvertretung der Living Fertighaus GmbH
Frau Derya Gülderen
Hauptstrasse12
63486 Bruchköbel
Telefon: +49 176 61688636
61169 Friedberg (Hessen)
































